€ 2.200.000

Villa a Bagno a Ripoli

Dettagli dell'offerta

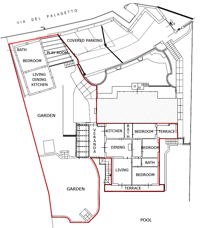
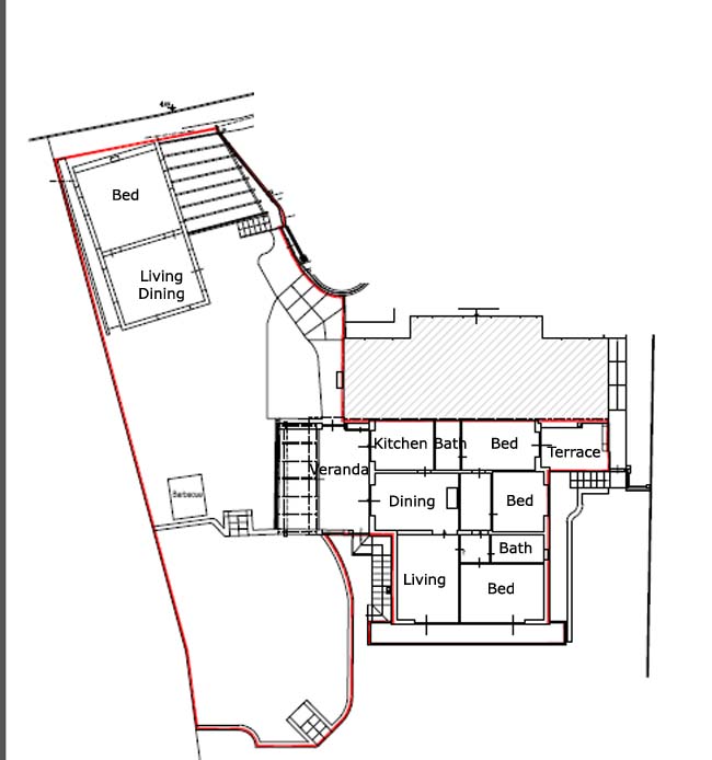
Libera su quattro lati, rivolta a solatio, questa casa moderna, in ottime condizioni, si sviluppa su due piani per un totale di circa 450 metri quadri e con circa 5000 metri di spazio esterno. La casa e’ divisa al momento in tre appartamenti oltre ad una depandance indipendente di circa 50 metri quadri. Al piano terreno abbiamo un primo appartamento più grande di circa 120 mq con 2 camere e due bagni, ed un secondo appartamento di circa 80 metri con due camere e due bagni. Al livello sottostante (in parte semiinterrato) troviamo il terzo appartamento di circa 190 metri quadri formato da zona bella stanza soggiorno, un pranzo e cucina e due camere e due bagni. Nel giardino abbiamo la depandance con una camera ed un bagno. Il giardino ha prato e qualche albero, irrigazione automatica, diverse zone patio e la piscina. Riscaldamento sia a gas metano che ibrido pompe calore, collegamento con acqua di citta’.

 

1

Immobiliare
Poggio Imperiale

Vuoi avere maggiori informazioni su questo immobile? 

Compila subito la richiesta qui sotto, un nostro agente ti contatterà quanto prima